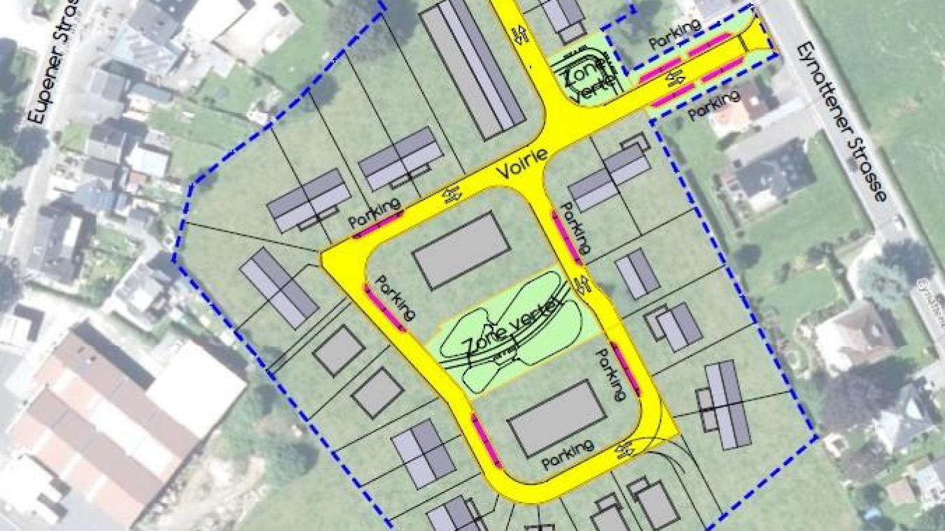
Federführend sind zwei Bauunternehmen aus Ostbelgien, die hinter der neuen Residenz Weißdorn, direkt am Kreisverkehr, neuen Wohnraum schaffen möchten.
50 neue Wohnungen in Eynatten geplant
Jetzt weiterlesen – und noch viele weitere Artikel…
Mit dem Basic-Abo haben Sie Zugang zu allen Artikeln bereits ab
9 € pro Monat!
Jetzt abonnieren
Bereits abonniert?

Kommentare
Kommentar verfassen
0 Comment
Sie müssen angemeldet sein, um zu kommentieren.
AnmeldenRegistrieren